The pipeline shut-off device is designed for temporary hermetic shut-off on one or both sides of the repaired section of the pipeline under pressure of the transported medium (water, gas, oil). It is used during emergency and planned works on pipeline systems, pipeline tie-in, tie-in of jumpers, repair or replacement of damaged sections, re-laying of lines and other pipeline reconstruction works.
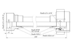
The device consists of three systems: hydraulic drive, system of sealing units and system of power plugs with sealing seal. Installation of the shut-off device on the pipeline is carried out on a welded socket (tee) of 300 mm height through a full-bore wedge gate valve.
The shut-off process is controlled from the control panel. Control devices located on the control panel of the oil station and on the shut-off device itself provide convenient measurement and observation of the technological process and its modes.
Tell us what you need and get quotes from verified suppliers